住宅の耐震相談、耐震診断、耐震補強工事はTAS企画【一級建築事務所】へ
HOME
>
施工実績
> IK 様邸
IK様邸 (府中市) 2階建て 二世帯住宅
ハイセンスな片流れ屋根
ロフト空間と吹抜けにより、ゆったりとした二世帯住宅を実現。
主要用途 : 専用住宅
構造規模 : 木造 地上2階
施工面積 : 158.2㎡ ( 47.8坪 )
建築場所 : 府中市
外観
外観パース
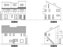
立面図
1階 LDK
2階 LDK
ロフト 及び 吹抜け
地鎮祭
上棟工事
上棟工事
TAS企画では、無料でご相談を受け付けております。 お気軽にご相談ください。
HOME
耐震相談
耐震診断
耐震補強
会社概要
お問い合わせ
LINK
個人情報保護方針
サイトマップ