 |
7層スキップフロア・高性能住宅
スキップフロアを採用し、狭小地における超空間を実現。
高性能(外断熱・高気密)、頑丈な構造(金物工法)など、様々なニーズに答えた住宅。 |
| 主要用途 : 専用住宅 |
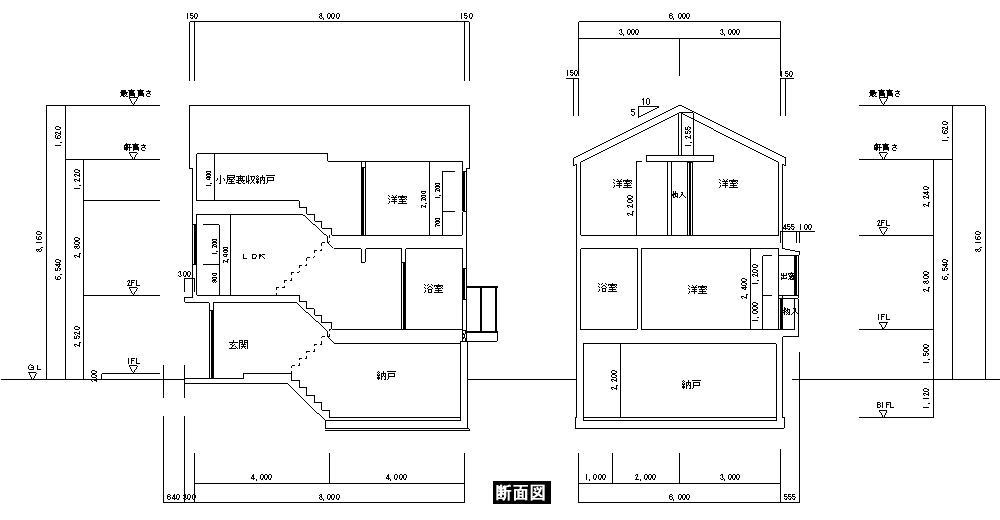
構造規模 : 木造 地上2階 半地下1階 |
| 施工面積 : 119.90㎡ ( 36.20坪 ) |
建築場所 : 府中市 |
|
● 超空間 (7層立体空間で2倍の広さ)
25坪(建ぺい60%)の敷地に2階建て申請で実質44坪(半地下・ビルトインガレージ・ロフト)の空間を実現。小屋裏の収納までを入れれば、なんと50坪以上という魔法のような立体空間(7層)の家を実現しました。
● 高性能 (外断熱・高気密) 住宅
屋根:115㎜「押し出し法ポリスチレンフォーム第3種 ( 最高性能断熱材 )」
壁(基礎) : 50㎜「押し出し法ポリスチレンフォーム第3種 ( 最高性能断熱材 )」
窓には断熱2重ガラスを採用。
屋根・壁全て外断熱による完璧な気密、断熱施工を実施。
● 頑丈な構造
構造材は柱、梁すべて120㎜以上のアカマツ集成材を使用、特別な接合金物でしっかり組み立てられたハイブリッド工法。 |
|
|
|
 |
|
|
 |
 |
 |
| ダイニング からの リビング |
リビング からの ダイニング |
ダイニングキッチン |
|
|
 |
 |
 |
| 地下室(半地下) |
小屋裏部屋 |
ユニットバス と 造作家事コーナー |
|
|
|
|
|
|
 |
 |
 |
 |
| 地下 鉄筋 型枠工事 |
地下 コンクリート打設 |
土台敷き (接合金物) |
|
|
|
 |
 |
 |
| 小屋裏 (収納利用) |
断熱工事 |
設備工事 (システムキッチン) |
|
|
|
 |
|
| TAS企画では、無料でご相談を受け付けております。 お気軽にご相談ください。 |
 |
|
|